DINA 25 S
-
Możliwość wyprowadzania spalin przez ścianę.
-
Modulacja 1:5, minimalna moc startowa wynosi 4,2 kW
-
Wymiennik ze stali nierdzewnej CONDEVO
-
Adaptacyjny zawór gazowy – dostosowany do 20% mieszanki wodorowej, zmiana rodzaju gazu z CNG na LPG nie wymaga zestawu przezbrojeniowego.
-
W pełni automatyczna, cyfrowa kalibracja zaworu gazowego.
-
Naczynie przeponowe 7 L.
-
Kompozytowy blok hydrauliczny
-
Intuicyjny piktogramowy wyświetlacz do podglądu i ustawień nastaw temperatur, parametrów, historii czy też anomalii.
-
Wentylator o ciśnieniu 175 Pa. Wyrzut spalin 60/100 do 13m, wyrzut spalin 80/125 do 17m.
Dina 25 S
Kondensacyjny, dwufunkcyjny kocioł gazowy z zamkniętą komorą spalania
Kocioł kondensacyjny Anteres, w przeciwieństwie do tradycyjnych kotłów, odzyskuje ciepło poprzez kondensację pary wodnej zawartej w spalinach oznacza to, że przy tej samej ilości wyprodukowanego ciepła zużywa mniej gazu, a spaliny zawierają również mniej substancji
niebezpiecznych dla środowiska.
Użyte materiały i systemy kontroli, z którymi Jego wyposażenie zapewnia bezpieczeństwo, wysoki poziom komfortu i oszczędność energii, dzięki czemu można cieszyć się zaletami niezależnego ogrzewania.
Dina 25 S
Jego mocną stroną jest technologia Gas Adaptive, która minimalizuje zużycie paliwa i optymalizuje wydajność.
Dzięki temu systemowi kocioł automatycznie wykrywa charakterystykę gazu i dostosowuje się, aby zmaksymalizować poziom wydajności, zmniejszając w ten sposób zużycie i
emisje.
- H2 Ready / 20% wodoru
- Przeprowadzanie automatycznej analizy spalania gazu
- Pojedynczy model dla CNG i LPG
- Modulacja 1:5
- Całkowity palnik z mieszaniem wstępnym, wykonany ze stali nierdzewnej (klasa NOx 6)
Najważniejsze parametry kotła
- Możliwość wyprowadzania spalin przez ścianę.
- Modulacja 1:5, minimalna moc startowa wynosi 4,2 kW
- Wymiennik ze stali nierdzewnej CONDEVO
- Adaptacyjny zawór gazowy – dostosowany do 20% mieszanki wodorowej, zmiana rodzaju gazu z CNG na LPG nie wymaga zestawu przezbrojeniowego.
- W pełni automatyczna, cyfrowa kalibracja zaworu gazowego.
- Naczynie przeponowe 7 L.
- Kompozytowy blok hydrauliczny
- Intuicyjny piktogramowy wyświetlacz do podglądu i ustawień nastaw temperatur, parametrów, historii czy też anomalii.
- Wentylator o ciśnieniu 175 Pa. Wyrzut spalin 60/100 do 13m, wyrzut spalin 80/125 do 17m.
Gotowy na wodór
W trosce o ciągłe zaangażowanie w ochronę środowiska
Wśród alternatyw dla tradycyjnych paliw, wykorzystanie wodoru wyłania się jako obiecujące rozwiązanie; spalanie wodoru może uwalniać do atmosfery jedynie parę wodną i minimalne ilości tlenków azotu: jest to ogromna zaleta z ekologicznego punktu widzenia. Ponadto istniejąca infrastruktura, taka jak sieć transportu i dystrybucji metanu we Włoszech, może już transportować mieszaniny metanu i wodoru o stężeniu 20% objętościowo. Instalacja kotła Hydrogen Ready 20% oznacza przygotowanie się na przyszłość mniej zależną od metanu.
Istnieją dwie korzyści dla konsumentów, którzy wybiorą kocioł Hydrogen Ready 20%:
- Inwestowanie w urządzenie, które może mieć żywotność ponad 20 lat z technologią, która jest gotowa na przyszłe zmiany w branży bez konieczności wymiany zaworów
- Inwestycja w zaawansowane technologicznie urządzenie zgodne z najbardziej zaawansowanymi
rozwiązaniami w zakresie zrównoważonego zarządzania energią.
Dane techniczne
| Parametr | Jedn. | 25 | 30 | 35 |
|---|---|---|---|---|
| Nominalne natężenie przepływu grzewczego / sanitarnego | kW | 21,0 / 26,0 | 26,0 / 31,0 | 31,0 / 34,9 |
| Minimalne natężenie przepływu grzewczego / sanitarnego | kW | 5,2 / 5,2 | 6,2 / 6,2 | 7,0 / 7,0 |
| Maksymalna moc 60°/80°C | kW | 20,7 / 25,6 | 25,7 / 30,6 | 30,5 / 34,3 |
| Minimalna moc 60°/80°C | kW | 4,9 / 4,9 | 5,9 / 5,9 | 6,6 / 6,6 |
| Maksymalna moc 30°/50°C | kW | 22,6 / 28,0 | 27,9 / 33,3 | 33,0 / 37,2 |
| Minimalna moc 30°/50°C | kW | 5,5 / 5,5 | 6,5 / 6,5 | 7,3 / 7,3 |
| Ilość kondensatu (nom.) | l/h | 4,2 | 5,0 | 5,6 |
| Ilość kondensatu (min.) | l/h | 0,8 | 0,9 | 1,0 |
| pH kondensatu | 4 | 4 | 4 | |
| Sprawność 60°/80°C (nom.) | % | 98,58 | 98,69 | 98,3 |
| Sprawność 60°/80°C (min.) | % | 94,0 | 95,0 | 95,0 |
| Sprawność 30°/50°C (nom.) | % | 107,8 | 107,4 | 106,5 |
| Sprawność 30°/50°C (min.) | % | 105,9 | 105,5 | 105,5 |
| Sprawność przy 30% obciążenia | % | 109,75 | 109,65 | 109,71 |
| Efektywność energetyczna | % | 94 | 94 | 94 |
| Straty ciepła (pracujący palnik) | Pf (%) | 1,1 | 1,1 | 1,5 |
| Straty ciepła (wyłączony palnik) | Pfbs (%) | 0,2 | 0,2 | 0,2 |
| Straty ciepła przez obudowę | Pd (%) | 0,3 | 0,2 | 0,2 |
| Klasa NOx | 6 | 6 | 6 | |
| NOx ważony | mg/kWh | 28 | 32 | 30 |
| Zakres temperatur ogrzewania | °C | 25 / 80 | 25 / 80 | 25 / 80 |
| Ciśnienie ogrzewania | bar | 0,3 / 3 | 0,3 / 3 | 0,3 / 3 |
| Dostępna głowica | mbar | 430 | 430 | 430 |
| Pojemność zbiornika | l | 7 | 7 | 7 |
| Temperatura CWU | °C | 33 / 55 | 33 / 55 | 33 / 55 |
| Ciśnienie CWU | bar | 0,3 / 10 | 0,3 / 10 | 0,3 / 10 |
| Przepływ (ΔT=25 / 35) | l/min | 14,9 / 10,4 | 17,7 / 12,3 | 19,7 / 13,8 |
| Przepływ CWU (ΔT=30) | l/min | 12,5 | 14,8 | 16,4 |
| Napięcie / moc | V / W | 230 / 94 | 230 / 106 | 230 / 120 |
| Moc minimalna | W | 12 | 11 | 12 |
| Stand-by | W | 3 | 3 | 3 |
| Stopień ochrony | IPX5D | IPX5D | IPX5D | |
| Temperatura spalin | °C | 36 / 76 | 44 / 78 | 46 / 80 |
| Przepływ spalin | kg/s | 0,0024 / 0,0120 | 0,0029 / 0,0114 | 0,0032 / 0,0162 |
| Przepływ powietrza | kg/s | 0,0023 / 0,0116 | 0,0028 / 0,0139 | 0,0031 / 0,0156 |
| Długość wylotu (koncentryczny) | m | 10 / 16 | 10 / 15 | 10 / 12 |
| Długość wylotu (rozdzielny) | m | 40 | 40 | 40 |
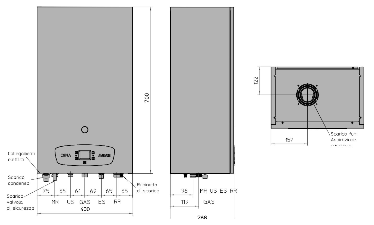
| Wymiary | mm | 700 x 400 x 268 | 700 x 400 x 268 | 700 x 400 x 268 |
| Waga | kg | 31,5 | 36,0 | 36,0 |
| Pojemność wodna | l | 2 | 2 | 2 |




